

















- 価格
- 2,198万円
- 種別
- 新築戸建
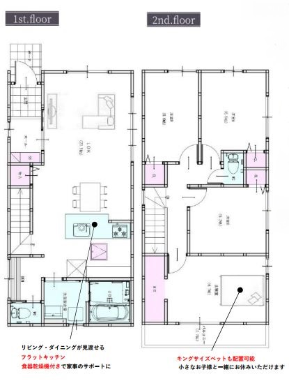
- 間取
- 4LDK
-
- 所在地
- 岡山県倉敷市安江260-2
- 交通
- 水島臨海鉄道 球場前駅 徒歩8分
物件詳細
| 築年月 | 2025 | 新築/中古 | |
|---|---|---|---|
| 面積 | 99.57m² | 計測方式 | 壁芯 |
| バルコニー | 向き | ||
| 建物階数 | 地上2階 | 部屋階数 | 1-2階 |
| 建物構造 | 木造 | ||
| 敷地全体面積 | 139.07m² | 延べ床面積 | |
| 間取内容 |
LDK 20.5畳 1階 1室 洋室 6.7畳 2階 1室 洋室 6.6畳 2階 1室 洋室 5.2畳 2階 1室 洋室 5.0畳 2階 1室 +WIC |
||
| 駐車場 | 空有 | 取引態様 | 仲介 |
| 引渡/入居時期 | 現況 | 未完成 | |
| 周辺環境 | |||
| 設備・条件 | 未入居 ガスコンロ 三口コンロ システムキッチン カウンターキッチン 食器洗い乾燥機 給湯 追い焚き 洗髪洗面化粧台 独立洗面台 浴室乾燥機 バス・トイレ別 温水洗浄便座 床下収納 W.INクローゼット TVドアホン 都市ガス 公営水道 排水下水 駐車場有 バルコニー | ||
| 物件番号 | 60659 | 掲載期限日 | 2026/03/25 |
Loading...
※物件掲載内容と現況に相違がある場合は現況を優先と致します。
お問い合わせはこちらからお寄せください
お電話からのご予約・お問い合わせ
TEL 086‐250‐7380
営業時間 10:00~17:00
定休日 火・水曜日
WEBからのご予約・お問い合わせは、下記のフォームからお気軽にどうぞ



















