

















- 価格
- 2,898万円
- 種別
- 新築戸建
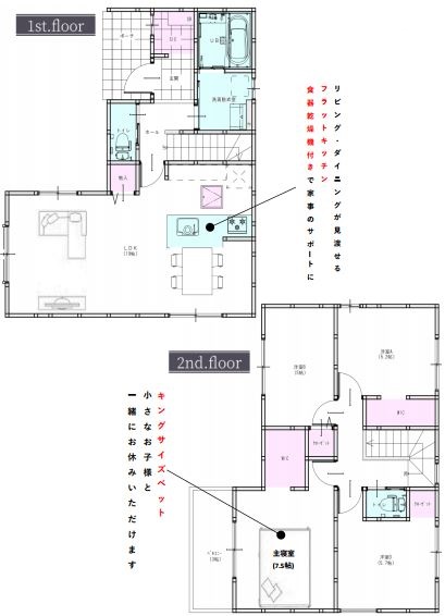
- 間取
- 4LDK
-
- 所在地
- 岡山県岡山市南区当新田356-34
- 交通
- JR瀬戸大橋線 備前西市駅 徒歩15分
物件詳細
築年月 | 2025/08 | 新築/中古 | |
---|---|---|---|
面積 | 103.24m² | 計測方式 | 壁芯 |
バルコニー | 向き | ||
建物階数 | 地上2階 | 部屋階数 | 1-2階 |
建物構造 | 木造 | ||
敷地全体面積 | 108.31m² | 延べ床面積 | |
間取内容 |
LDK 19畳 1階 1室 洋室 7.5畳 2階 1室 洋室 5.7畳 2階 1室 洋室 5.2畳 2階 1室 洋室 5.0畳 2階 1室 +2WIC+SIC |
||
駐車場 | 取引態様 | 仲介 | |
引渡/入居時期 | 即時 | 現況 | 空家 |
周辺環境 | |||
設備・条件 | 未入居 ガスコンロ 三口コンロ システムキッチン カウンターキッチン 食器洗い乾燥機 給湯 追い焚き 独立洗面台 浴室乾燥機 バス・トイレ別 温水洗浄便座 W.INクローゼット TVドアホン プロパンガス 公営水道 排水下水 駐車場有 バルコニー | ||
物件番号 | 58931 | 掲載期限日 | 2025/11/20 |
Loading...
※物件掲載内容と現況に相違がある場合は現況を優先と致します。
お問い合わせはこちらからお寄せください
お電話からのご予約・お問い合わせ
TEL 086‐250‐7380
営業時間 10:00~17:00
定休日 火・水曜日
WEBからのご予約・お問い合わせは、下記のフォームからお気軽にどうぞ